Sıhhi Tesisat Sistemleri için Tasarım Programı
CYPEPLUMBING, her türlü binadaki su temini, drenaj sistemleri ve güneş enerjisi sistemlerinin tasarım ve analizinde profesyonellere yardımcı olmak üzere oluşturulmuş bir programdır.
Program, kullanıcıların bir geometrik modeli bir BIMserver.center projesine bağlayarak içe aktarmalarına olanak tanır. Ardından, su temini, drenaj sistemleri ve güneş enerjisi sistemlerinin elemanları üç boyutlu bir ortamda veya farklı 2B görünümler aracılığıyla girilir ve analiz, tasarım ve kontrollerini gerçekleştirmek için gerekli parametreler yapılandırılır. Çeşitli önceden tanımlanmış yönetmeliklere veya özelleştirilmiş test yapılandırmalarına uygunluk doğrulanabilir.
Not:
CYPEPLUMBING, artık üretilmeyen CYPEPLUMBING Su Sistemleri, CYPEPLUMBING Sıhhi Tesisat Sistemleri ve CYPEPLUMBING Güneş Enerjisi Sistemleri programlarının özelliklerini ve Açık BIM Düzeni’ni bir araya getirir.
Program Tarafından Desteklenen İş Akışları
BIMserver.center platformuna bağlı bir Açık BIM aracı olan CYPEPLUMBING, farklı iş akışı seçenekleri sunar.
Veri girişi
Serbest modelleme / Şablonlar

Sistemin elemanlarını CYPEPLUMBING’e serbestçe girerek tanımlama.
Sistemin elemanlarını DXF/DWG, DWF veya görüntü şablonlarına (.jpeg, .jpg, .bmp, .wmf) göre CYPEPLUMBING’de tanımlama.
BIM modellerini içe aktarma
CYPEPLUMBING işi, BIMserver.center platformundaki bir BIM projesine bağlıysa, aşağıdaki işlemler gerçekleştirilebilir:
Bir binanın geometrisine sahip modeli içe aktarma. Bu, kullanıcıların binanın kotlarını ve plan görünümlerini oluşturmasına ve bu geometriye göre sistem elemanlarını eklemesine olanak tanır. Mevcut seçenekler aşağıda listelenmiştir.
- CYPE Architecture’da tasarlanan modelleri içe aktarma.
- IFC Builder’da tasarlanan modelleri içe aktarma.
- Allplan, ArchiCAD ve diğerleri gibi CAD/BIM programları tarafından oluşturulan ve web platformu üzerinden BIMserver.center projesine yüklenen IFC formatındaki modelleri içe aktarma.
- Open BIM – Revit Eklentisi ile Autodesk Revit’te tasarlanan modelleri içe aktarma. Mimari model IFC Builder veya CYPE Architecture tarafından oluşturulmuşsa, bu modelde bulunan DXF veya DWG şablonları da içe aktarılabilir; ayrıca, bir model BIM projesine aktarıldığında programın kendisi tarafından oluşturulan (girilen yapı elemanlarından) şablon da içe aktarılabilir.
- Sıhhi tesisatların modellenmesine olanak tanıyan programlar tarafından sağlanan bilgilerden tüketim ve deşarjların oluşturulması:
- CYPE Architecture sıhhi tesisatlarından tüketim ve deşarjların oluşturulması.
Veri çıkışı
- Raporların HTML, DOCX, PDF, RTF ve TXT formatlarına aktarılması.
- Çizimlerin DXF, DWG ve PDF formatlarına aktarılması.
- Malzeme listesinin FIEBDC-3 formatına aktarılması.
- CYPEPLUMBING ile üretilen bilgilerin IFC ve glTF formatlarını kullanarak BIMserver.center platformuna aktarılması. Bu sayede projeye katılma yetkisi olan kullanıcılar bilgileri görüntüleyebilir. CYPEPLUMBING ile üretilen bilgilerin IFC ve glTF formatlarını kullanarak BIMserver.center platformuna aktarılması. Bu sayede projeye katılma yetkisi olan kullanıcılar bilgileri görüntüleyebilir. CYPEPLUMBING ile üretilen bilgiler, aşağıdaki üreticilerin BIM programları tarafından, ürünlerinin sistem detaylandırılması için kullanılabilir:
- Terrain SDP – Su Sistemleri
- Nueva Terrain su temin sistemlerinin BIM modellemesi.
- Terrain SDP – Sıhhi Tesisat Sistemleri
- Nueva Terrain su drenaj sistemlerinin BIM modellemesi. Açık BIM aliaxis
- Aliaxis su drenaj sistemlerinin BIM modellemesi.
ÇALIŞMA ORTAMI

CYPEPLUMBING arayüzünün ana penceresinin alt kısmında farklı çalışma ortamlarını gösteren dört sekme bulunur: “Su Sistemleri”, “Güneş Enerjisi Sistemleri”, “Sıhhi Tesisat Sistemleri” ve “Yerleşim”. Bu ortamlar, diğer CYPE araçlarındaki ortamlara benzer ve çalışma alanını projenin ihtiyaçlarına göre uyarlayabilen bir yerleştirilebilir pencere sistemine sahiptir.
“Su Sistemleri” sekmesi

“Su Sistemleri” sekmesi (Cype Plaumbing Water Systems), su temin sistemlerine giriş ve tasarım araçları içerir.
Bu sekme ayrıca ana pencerenin üst kısmında bulunan üç sekmeye ayrılır:
- Kurulum
- Diyagramlar
- Metraj cetveli
“Su Sistemleri” sekmesine ilişkili tüketim ve deşarj değerleri girildiğinde, deşarj otomatik olarak “Sıhhi Tesisat Sistemleri” sekmesine dahil edilir.
Bu seçenekler ve özellikler hakkında daha fazla bilgi, CYPEPLUMBING.com adresindeki “Su Sistemleri” sekmesi ayrıntılı bilgi sayfasında bulunabilir:
“Güneş Enerjisi Sistemleri” sekmesi

“Güneş Enerjisi Sistemleri” sekmesi, güneş enerjisi sistemlerine giriş ve tasarım araçları içerir.
Bu sekme ayrıca ana pencerenin üst kısmında bulunan üç sekmeye daha ayrılmıştır:
Kurulum
Diyagramlar
Metraj cetveli
Bu seçenekler ve özellikler hakkında daha fazla bilgiyi CYPEPLUMBING “Güneş Enerjisi Sistemleri” sekmesi sayfasında bulabilirsiniz:
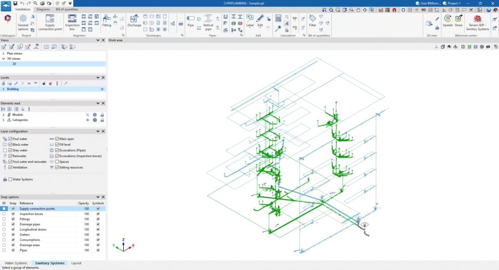
“Atık su & Yağmur Suyu-Sıhhi Tesisat Sistemleri” sekmesi

“Sıhhi Tesisat Sistemleri” sekmesi, atık su ve yağmur suyu bertaraf sistemlerinin girişi ve tasarımı için gerekli araçları içerir.
Bu sekme ayrıca ana pencerenin üst kısmında bulunan üç sekmeye ayrılır:
Kurulum
Diyagramlar
Miktar Listesi
“Sıhhi Tesisat Sistemleri” sekmesine ilişkili tüketim ve deşarj değerleri girildiğinde, tüketim otomatik olarak “Su Sistemleri” sekmesine dahil edilir.
Bu seçenekler ve özellikler hakkında daha fazla bilgi, CYPEPLUMBING.com adresindeki “Sıhhi Tesisat Sistemleri” sekmesi ayrıntılı bilgi sayfasında bulunabilir:
“Düzen” sekmesi

Bu sekmede, kullanıcılar diğer uygulamalardan alınan grafik bilgileri de içeren iki sistemden (su temini ve su drenajı) oluşan çizimler oluşturabilirler. Ayrıca, su temini ve drenaj için belirli etiketler atayabilir ve bunları etiketlerle birlikte yerleştirerek kullanıcıların planın 3B görünümünü oluşturmalarını sağlayabilirsiniz.
Not:
CYPEPLUMBING’deki “Düzen” sekmesi, Open BIM Layout programının seçeneklerini ve özelliklerini bir araya getirir. Bu seçenekler ve özellikler hakkında daha fazla bilgiyi Open BIM Layout’un ayrıntılı bilgi sayfasında bulabilirsiniz.
























[…] Enerjisi Su Sistemleri Tasarımı CYPEPLUMBING Su Sistemleri Tasarımı Sıhhi Tesisat Sistemleri için Tasarım Programı CYPE 2026.b Versiyonu Çelik Yapılarda Ön Yeterliliğe Sahip Birleşimler […]