CYPE 2026.b Versiyonu Yeni Özellikler
Önceden belirlenmiş uygulamalarla projelerin doğrudan açılması
2026.b sürümünden itibaren, proje dosyaları Windows ortamındaki ilgili CYPE uygulamasıyla otomatik olarak ilişkilendirilmektedir. Bu, dosyayı manuel olarak seçmenize gerek kalmadan, doğrudan uygun programda açmak için dosyaya çift tıklamanız gerektiği anlamına gelir. Bu iyileştirme, iş akışını kolaylaştırır ve daha sorunsuz ve daha verimli bir kullanıcı deneyimi sağlar.
CYPECAD ve CYPE 3D’de kazıklar ve temeller üzerinde yeni kontroller
CYPECAD, CYPE 3D ve Temel elemanlarında artık birden fazla etriye kesiti tanımlamak, yapısal sınırı kontrol etmek ve Arjantin’deki CIRSOC 103 standardına göre kontroller yapmak mümkün.
CYPECAD’de kullanıcı kriterlerini kullanarak taban kesme kuvvetinin dikkate alınması
CYPECAD’de, taban kesme kuvvetlerindeki artışın kullanıcı kriterleri ile dikkate alınması seçeneği tüm deprem yönetmeliklerine eklenerek uluslararası projelerde daha fazla esneklik sağlanmıştır.

CYPECAD’de Zımbalama Kesmesi ve portal çerçeve çizimlerinin düzenlenmesinde iyileştirmeler
CYPECAD artık Zımbalama kesme donatılarının düzenlenmesinde iyileştirmeler içeriyor ve portal çerçeve çizimlerinde alanı optimize etmek için yeni bir seçenek sunuyor, böylece proje dokümantasyonu kolaylaştırılıyor.

CYPE 3D’de yalnızca çekme çubukları için modülün genişletilmesi
Sadece çekme çubukları için NLT modülü, sadece basınç çubuklarını da içerecek şekilde genişletilmiştir. Bu özellik, yapısal modellemede daha fazla çok yönlülük sunar.

CYPE 3D’de şişen harçların dahil edilmesi ve yangın korumasında iyileştirmeler
CYPE 3D artık şişen harçları da dahil etmek için Açık BIM Veritabanına bağlanıyor ve “Yanmaz kaplamaların özeti” de dahil olmak üzere yangına dayanıklı kaplama raporları ve çizimleri iyileştirildi.


StruBIM Steel ve CYPE Connect’te içi dolu yuvarlak çubuklarla bağlantıların tasarımı
StruBIM Steel ve CYPE Connect’e, dolu yuvarlak çubuklarla bağlantıların tasarlanma ve kontrol edilme olanağı dahil edilerek, mevcut yapısal tip yelpazesi genişletilmiştir.

StruBIM Steel ve CYPE Connect’te kısmi penetrasyon kaynaklarının doğrulanması
Seçilen standarda uygun olarak StruBIM Steel ve CYPE Connect’te kaynak doğrulaması, köşe kaynaklarının yanı sıra kısmi penetrasyon kaynaklarını da kapsayacak şekilde genişletilmiştir.

StruBIM Steel ve CYPE Connect’te cıvataların basitleştirilmiş yerleştirilmesi
StruBIM Steel ve CYPE Connect’te, cıvataların konumlarının daha hızlı ve kolay tanımlanmasını sağlayan ve bağlantıların modellenmesinde verimliliği artıran yeni seçenekler uygulandı.

StruBIM Steel ve CYPE Connect’te raporların çok dilli olarak dışa aktarılması
Proje raporları farklı dillere aktarılabiliyor, bu sayede projelerin uluslararası ortamlarda yönetimi kolaylaşıyor.
CYPECAD, CYPE 3D, StruBIM Steel ve CYPE Connect’te yeni uluslararası standartların uygulanması
- 2026.b sürümü, yeni standartların uygulanmasıyla CYPE yazılımının uluslararası kapsamını genişletmektedir:
- CYPECAD (Türkiye rüzgar standardı TS 498: 2021);
- CYPECAD ve CYPE 3D (Cezayir deprem standardı RPA 2024);
- CYPECAD, CYPE 3D ve Portal çerçeve üreteci (Romanya haddelenmiş çelik standardı SR EN 1993-1-1);
- CYPECAD, CYPE 3D ve Portal çerçeve üreteci (Romen standardı SR EN 1993-1-3 ve şekillendirilmiş çelik için Hindistan standardı IS 801 – 1975 (Rf 1995));
- StruBIM Steel ve CYPE Connect (Avustralya ankraj standartları AS 3600: 2018 ve AS 5216: 2021).
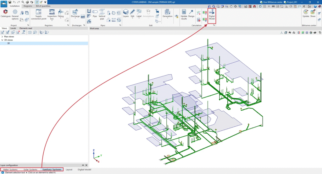
CYPEPLUMBING’de yeni MDC modülü – “Sıhhi tesisat sistemlerinin ayrıntılı modeli”
2026.b sürümü, tesisat sistemlerinin doğru bir şekilde modellenmesi için “Sıhhi Tesisat Sistemlerinin Ayrıntılı Modeli” adlı MDC modülünü içerir. Bu araç, sistemlerin eksiksiz bir dökümünü sunarak hidrolik tasarımı, sistemin grafiksel gösterimini ve projeyle ilgili miktar ve maliyetlerin elde edilmesini kolaylaştırır.


CYPEPLUMBING’de drenaj sisteminin otomatik düzeni
CYPEPLUMBING‘e, drenaj sisteminin farklı bölümlerindeki boruların otomatik yerleşimini sağlayan çeşitli yeni özellikler eklendi. Oluşturulan geometri, kullanıcı tarafından daha sonra projenin ihtiyaçlarına göre ayarlanabilir ve değiştirilebilir. Oluşturma seçenekleri, “Kurulum” sekmesinin (“Sıhhi Tesisat Sistemleri”nde) üst araç çubuğunda bulunan yeni “Oluştur” grubunda yer almaktadır.

CYPEPLUMBING’in “Sıhhi Tesisat Sistemleri” sekmesinde gruplandırma
CYPEPLUMBING, artık “Sıhhi Tesisat Sistemleri” sekmesinde, hem proje için kat planı tanımlarından hem de düzenleme menüsündeki “Ata” seçeneğinden katlara göre gruplama yapma olanağı sunuyor. Bu özellik, farklı seviyelerdeki projelerde su drenaj sistemlerinin daha verimli yönetilmesini sağlıyor.

CYPEHVAC kanallarında yeni termal ve akustik analiz
CYPEHVAC artık kanallarda birleşik termal ve akustik analiz özelliğine sahip. Bu özellik, tesisatın ısı transferini ve akustik performansını aynı anda değerlendirebilir ve sonuçları, sistemin genel performansının hızlı ve sezgisel yorumlanmasını kolaylaştıran renkli haritalar kullanarak görüntüleyebilir.

























