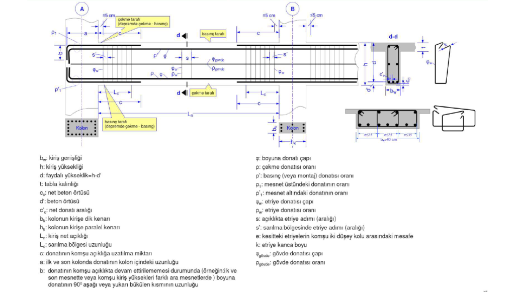
Minimum Kiriş Boyutları
Statik hesaplarımızda kullanmak üzere hazırlanmış çok pratik TS500-2000 VE TBDY2018(bkn TBDY 2018) Yönetmeliklerinin karşılaştırmalı değerlerini bulabileceğiniz minimum kiriş boyutları verilmiştir.
TS500-TBDY0218 Karşılaştırmalı Minimum Kiriş Boyutları
| Tanım | TS500-200 | TBDY-2018 | EK-ÖNERİLER |
| min bw | 20 cm | 25 cm | 25 cm |
| max bw | bk+h | bk+h | – |
| min h | 30 cm,3t, Ln/10 | 30 cm, 3t | 40 cm |
| max h | Ln/2.5 sürekli Kirişlerde, Ln/1.5 Basit Kirişlerde | 3.5bw , Ln/4 | |
| min ρ | 0.8fctd/fyd | – | – |
| max ρ | 0.02 | 0.02 | – |
| min ρ1 | 0.8fctd/fyd | 0.8fctd/fyd | – |
| max ρ1 | 0.02 | 0.02 | |
| min ρ’ | – | ρ1 /4 | – |
| min ρ’1 | – | 0.5ρ1 , 0.8fctd/fyd | – |
| max ρ’1 | – | 0.02 | – |
| max (ρ- ρ’) | 0.85ρb | – | ρl =0.235fcd/fyd |
| max (ρ1– ρ’1) | 0.85ρb | 0.85ρb | ρl |
| min Lc | 2h | 2h | – |
| max s | 05h | 05h | 20 cm |
| min s | – | – | 10 cm |
| max s’ | h/4, 15 cm | h/4, 15 cm, 8 φmin | s/2, 10 cm |
| min s’ | – | – | 5 cm |
| max e | – | 35 | – |
| min φ | 12 mm | 12 mm | – |
| max φ | – | – | 24 mm |
| min φw | 8 mm | 8 mm | – |
| max φw | – | – | 12 mm |
| min ρw | 0.3fctd/fywd | Bakınız 7.4.5.2 | |
| min φgövde | 10 mm | 12 mm | 12 mm |
| min ρgövde | 0.01 | 0.3 (ρ1+ ρ’1) | – |
